Villa a schiera in vendita

Bagnacavallo, Via Federico Confalonieri
€ 180.000
3 locali 3 locali
115 Mq 115 Mq
2 bagni 2 bagni

Villa a schiera in vendita

Bagnacavallo, Via Federico Confalonieri

Descrizione annuncio

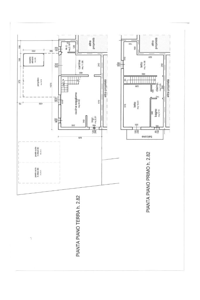
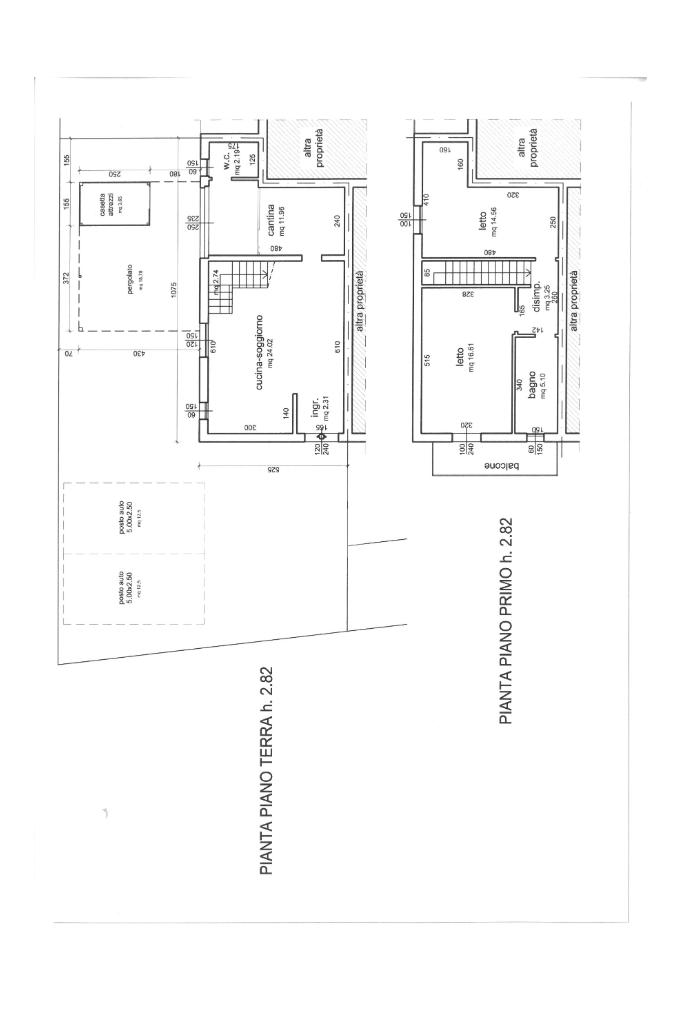
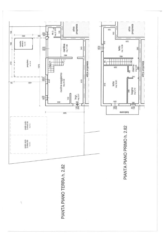
In bella zona residenziale, riservata e silenziosa, vicina a tutti i servizi, villetta d'angolo disposta su due livelli in buono stato.

Entrando dal corsello carrabile arriviamo all'ampio giardino di quasi 150 mq quasi tutto pavimentato e utilizzabile anche come posto auto.

Internamente abbiamo al piano terra la zona giorno costituita da una ampio soggiorno con angolo cottura e con un bel camino in muratura, poi abbiamo una zona di servizio ad uso cantina/lavanderia già predisposta anche per fare una ulteriore cucina ed un bagno di servizio.

Salendo la scala in arredo in legno, arriviamo al primo piano dove troviamo una camera da letto matrimoniale con portafinestra che si affaccia sul balcone, il bagno principale ed una camera doppia dove volendo ci possono stare due letti singoli.

Internamente le finiture sono degli anni '80 e sono in buono stato, abbiamo il pavimento in legno nel soggiorno e nelle camere da letto, gli infissi hanno già il doppio vetro, la caldaia è recente.

Il prezzo è trattabile!

Per vedere la casa chiamaci allo 0545 1773416, oppure manda una mail a: rahe4

Mostra tutto

Nelle vicinanze

Trasporto pubblico Trasporto pubblico
Bagnacavallo
Bagnacavallo
670 m
Trasporto pubblico
570 m
Farmacia Farmacia
Farmacia
710 m
Supermercati Supermercati
Conad La Pieve
310 m
Conad Superstore
1,5 Km
Bar Bar
Chiribilli
580 m
Bar Giardino
720 m
Ristoranti Ristoranti
Hotel Gemelli
190 m
Osteria Malabocca
580 m
PopPizzArt
650 m
La Cantina
690 m
Osteria Il giardino dei semplici
760 m
Mostra tutto

Caratteristiche

Rif.:
61114409
Piano:
Su più livelli di 2
Totale piani:
2
Posti auto:
2
Terrazzi:
1
Camere da letto:
2
Mostra tutto
Prezzo Prezzo
€ 180.000
Rata mutuo Rata mutuo
€ 850 / mese
Spese annue Spese annue
€ 0
Proponi il tuo prezzoProponi il tuo prezzo

Classe Energetica

G
G
G
G
G
G
G
G
G
EP globale non rinnovabile:
250.00 kW h/m² anno
EP invernale del fabbricato:
EP estiva del fabbricato:
Anno di costruzione:
1983
Riscaldamento:
Autonomo
Tipo impianto:
A radiatori
Tipo alimentazione:
Metano

Ti interessa visionare l'immobile?

Fissa un appuntamento  Fissa un appuntamento

Richiedi informazioni

Clicca su Leggi per aprire l'informativa
* Questi campi sono obbligatori

Calcola il tuo mutuo

Semplice e senza impegno
Anticipo

( % )
Mutuo

( % )

pochi semplici passi

inserisci i tuoi dati
Questionario completato
Grazie per aver richiesto un appuntamento senza impegno con un nostro Consulente del Credito e Assicurativo.

Hai inserito correttamente tutti i dati necessari e a breve riceverai una e-mail con un link da convalidare per inviare i tuoi dati.
Affiliato
Silvis Immobiliare Srl
Via Fiume, 5/A 48012 Bagnacavallo (RA)

Il nostro staff


  • Davide Albonetti
    Affiliato

  • Elmar Randi
    Affiliato
Via Fiume, 5/A 48012 Bagnacavallo (RA)
Zona: Bagnacavallo-Villanova-Traversara-Glorie-Rossetta-Masiera-Villa Prati-Boncellino
Mostra su mappa
Orari: Dal lunedì al venerdì dalle ore 9 alle ore 13 e dalle ore 15 alle ore 19.30; sabato dalle ore 9 alle ore 12.30
Affiliato
Silvis Immobiliare Srl
Via Fiume, 5/A 48012 Bagnacavallo (RA)

2025 Tecnocasa Franchising S.p.A. - P. IVA 08365160152 - Via Monte Bianco 60/A 20089 Rozzano (MI). Ogni agenzia ha un proprio titolare ed è autonoma. Privacy policy | Policy utilizzo | Cookie policy