Porzione di bifamiliare in vendita

Bagnacavallo, Via Cairoli
€ 320.000
10 locali 10 locali
290 Mq 290 Mq
3 bagni 3 bagni

Porzione di bifamiliare in vendita

Bagnacavallo, Via Cairoli

Descrizione annuncio

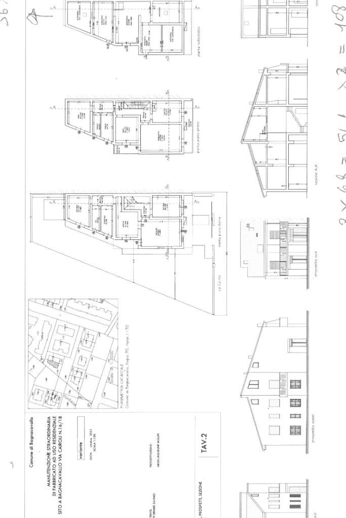
In ottima posizione verde e silenziosa perchè in strada a fondo chiuso, vicino al centro e a tutti i servizi principali, Villa in bifamiliare con ampio giardino su tre lati per oltre 200 mq ca.

La casa è di inizio anni '90 e misura circa 300 mq disposti su due livelli più un ampio piano mansardato, dispone di ben tre bagni di cui uno adattato per persone con disabilità, ed è in ottimo stato perchè rimodernata l'anno scorso nelle finiture interne. Gli ambienti risultano luminosi e con una distribuzione interna che consente un utilizzo flessibile dell'immobile.

Completano la proprietà il garage e ulteriori due posti auto pavimentati sul fronte della casa.

Ottimo stato generale, pavimenti rifatti, infissi in legno con il doppio vetro, ed impiantistiche certificate a norma di legge. Sono presenti due caldaie e quindi è possibile anche suddividere le zone abitative in due piani separati.

Ottima è la classe energetica perchè è la classe D

La casa è vuota e quindi libera subito e completa anche di relazione tecnica di conformità.

Per vedere la casa chiamaci al numero 05451773416, oppure manda una mail a: rahe4

Mostra tutto

Nelle vicinanze

Trasporto pubblico Trasporto pubblico
Bagnacavallo
Bagnacavallo
840 m
Trasporto pubblico
790 m
Lugo Stadio
Lugo Stadio
2,9 Km
Farmacia Farmacia
Farmacia
900 m
Supermercati Supermercati
Conad La Pieve
380 m
Conad Superstore
1,7 Km
Bar Bar
Chiribilli
770 m
Bar Giardino
930 m
Ristoranti Ristoranti
Hotel Gemelli
340 m
Osteria Malabocca
760 m
PopPizzArt
870 m
La Cantina
900 m
Osteria Il giardino dei semplici
930 m
Mostra tutto

Caratteristiche

Rif.:
61165395
Piano:
1 di 3 (Piano su più livelli)
Box:
1
Posti auto:
2
Balconi:
1
Terrazzi:
1
Mostra tutto
Prezzo Prezzo
€ 320.000
Rata mutuo Rata mutuo
€ 1.508 / mese
Spese annue Spese annue
€ 0
Proponi il tuo prezzoProponi il tuo prezzo

Classe Energetica

D
D
D
D
D
D
D
D
D
EP globale non rinnovabile:
83.07 kW h/m² anno
EP globale rinnovabile:
0.70 kW h/m² anno
EP invernale del fabbricato:
EP estiva del fabbricato:
Anno di costruzione:
1987
Riscaldamento:
Autonomo
Tipo impianto:
A radiatori
Tipo alimentazione:
Metano

Ti interessa visionare l'immobile?

Fissa un appuntamento  Fissa un appuntamento

Richiedi informazioni

Clicca su Leggi per aprire l'informativa
* Questi campi sono obbligatori

Calcola il tuo mutuo

Semplice e senza impegno
Anticipo

( % )
Mutuo

( % )

pochi semplici passi

inserisci i tuoi dati
Questionario completato
Grazie per aver richiesto un appuntamento senza impegno con un nostro Consulente del Credito e Assicurativo.

Hai inserito correttamente tutti i dati necessari e a breve riceverai una e-mail con un link da convalidare per inviare i tuoi dati.
Affiliato
Silvis Immobiliare Srl
Via Fiume, 5/A 48012 Bagnacavallo (RA)

Il nostro staff


  • Davide Albonetti
    Affiliato

  • Elmar Randi
    Affiliato
Via Fiume, 5/A 48012 Bagnacavallo (RA)
Zona: Bagnacavallo-Villanova-Traversara-Glorie-Rossetta-Masiera-Villa Prati-Boncellino
Mostra su mappa
Orari: Dal lunedì al venerdì dalle ore 9 alle ore 13 e dalle ore 15 alle ore 19.30; sabato dalle ore 9 alle ore 12.30
Affiliato
Silvis Immobiliare Srl
Via Fiume, 5/A 48012 Bagnacavallo (RA)

2026 Tecnocasa Franchising S.p.A. - P. IVA 08365160152 - Via Monte Bianco 60/A 20089 Rozzano (MI). Ogni agenzia ha un proprio titolare ed è autonoma. Privacy policy | Policy utilizzo | Cookie policy